Client Akara Funds
Design and build HRS Real Estate
Architecture pool Architekten + Meier Hug Architekten design partnership
Planning 2019 - 2022
Realization 2020 - 2023
Status Built

Show project info

The Baden Ost Tower stands in the center of Baden between an ABB service facility and the new Brown-Boveri-Platz. Rising 68 meters, it is the tallest building in this historical town on the River Limmat. Originally planned as a single-use office high-rise, changes in the property market prompted the decision to switch to a predominantly residential hybrid structure. Now just three of its nineteen upper stories house offices, while a further two floors offer flexible live/work space.

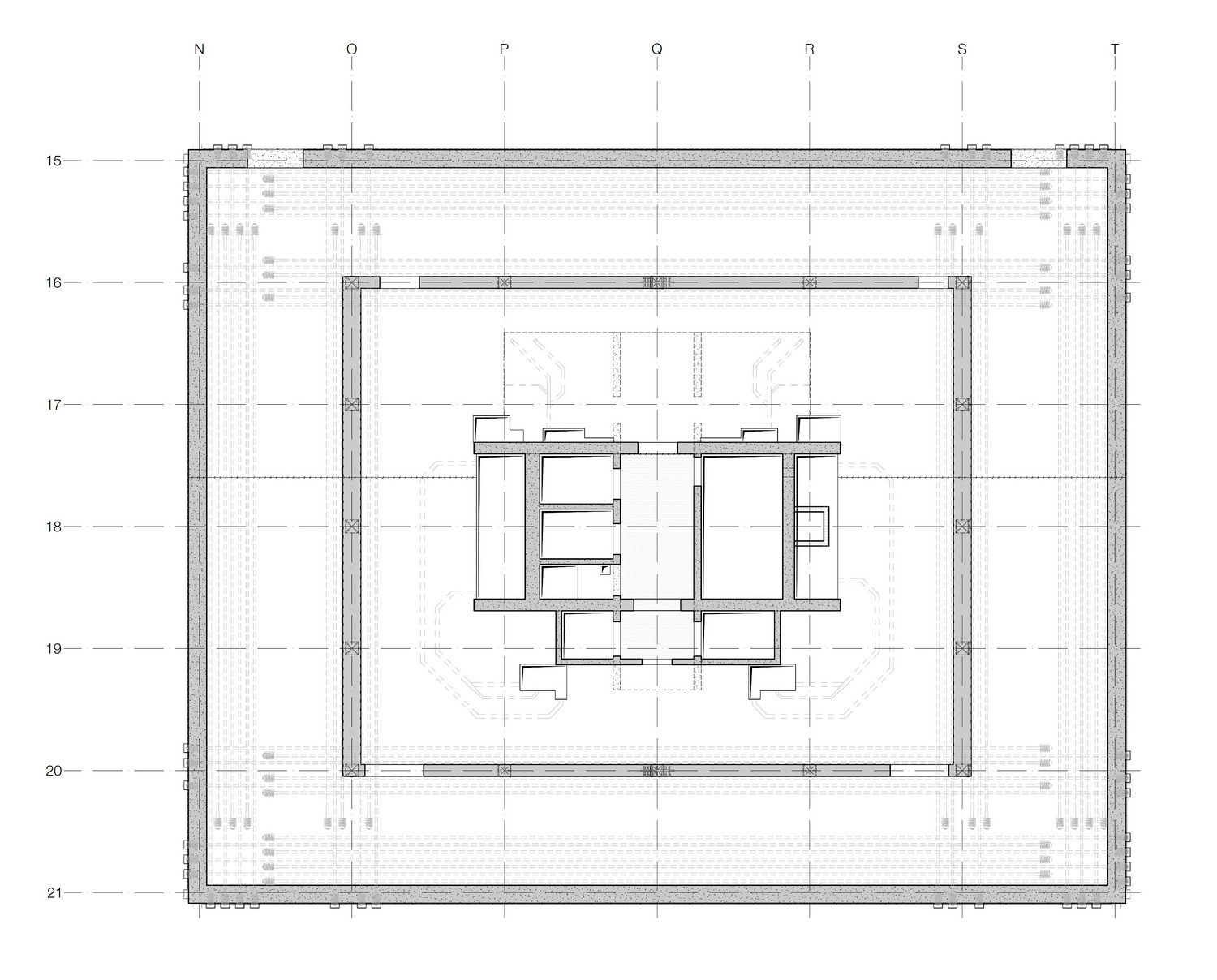
The upper stories are designed as a skeleton framework of flat slabs, central reinforcing circulation core and prefabricated concrete columns. The slab support provided by the facade columns and core is supplemented by a second, inner ring of columns. Due to the constrained nature of the site and the presence of underground structures that could not be built over, the building corners are set back at ground-floor level. This was achieved by designing the first floor as a transfer structure that transmits the column loads of the inner and outer rings down to a small number of main columns on the ground floor. These main columns run down to the base slab, where the loading is transferred to the subsurface via in-situ-cast bored piles. The access core is both clamped into the basement framework and consolidated with bored piles. The core is also stabilized by the transfer floor, which acts as an outrigger. The set-back ground-floor facade creates a star-shaped footprint and canopy-like covered areas with separate entrances for residential and office use.

The preloaded transfer floor at the heart of the tower’s load-bearing structure proved challenging in terms of both design and execution. With most of the technical plant also located on the first floor, coordinating the stringent structural engineering and building services requirements was key. Alongside the demanding aesthetic considerations, particularly on the imposing ground floor with its 6-metre-high fair-faced concrete walls, the works schedule was also very testing in terms of build speed. The tower’s core was constructed in advance using climbing formwork, quite separately from the floor slabs. A combination of construction process optimization and careful subcontractor coordination then made it possible to advance at the rate of a floor a week for standard layouts. 

Floor plan of the prestressing on the 1st floor Schnetzer Puskas Ingenieure

3D view of the corners of the load-bearing parapet on the second floor Schnetzer Puskas Ingenieure

Markus Bertschi

Client Akara Funds
Design and build HRS Real Estate
Architecture pool Architekten + Meier Hug Architekten design partnership
Planning 2019 - 2022
Realization 2020 - 2023
Status Built