| Bauherrschaft | Swiss Prime Site |
| Totalunternehmung | Batigroup |
| Architektur | Morger Degelo Marques |
| Tragwerksplanung | WGG Schnetzer Puskas Ingenieure |
| Planungszeit | 2000 - 2001 |
| Realisierungszeit | 2001 - 2003 |
| Status | Gebaut |
In Anlehnung an das Lever House in New York prägt der 105 Meter hohe, gläserne Schaft des Messeturms das Stadtbild Basels. Ausgangspunkt für das Gebäude war die 1994 verabschiedete Strategie «Messe Basel Plus», nach der die Messe in der Stadt bleiben und deren angestammten Standort erweitert werden sollte. Die Stadt Basel veranstaltete zusammen mit der Messe Schweiz einen internationalen, zweistufigen Architekturwettbewerb, aus dem der Entwurf des Planerteams Morger & Degelo / Marques Architekten in Kooperation mit Schnetzer Puskas Ingenieure erfolgreich hervorging.
Ein formal zurückhaltender Baukörper mit einer klaren, kubischen Geometrie zeichnet das Projekt aus. Das ausgeführte Tragwerkskonzept geht auf diese ästhetische Prämisse ein, indem das Tragwerk integraler Bestandteil der Architektur ist. Der Messeturm besteht aus zwei grundlegenden Bauteilen: einerseits der eigentliche Turm und andererseits ein mit dem Turm verschliffenes, auskragendes Volumen. Beide zeigen eine transparente Fassade, flexibel nutzbare Geschossflächen und in der Grösse reduzierte, zentrale Erschliessungsbereiche. Das Tragsystem des Turms besteht aus einem Betonkern in der Mitte des Grundrisses aus filigranen Stahlstützen unmittelbar hinter der Fassadenebene und aus 10 Metern weit gespannten Flachdecken aus Beton. Der Kern nimmt Treppen, Aufzüge sowie Versorgungsleitungen auf und trägt 65 Prozent der Vertikallasten. Daneben steift er den Turm zusammen mit dem Outrigger-System im Dachgeschoss gegen Wind- und Erdbebenlasten aus. Die Stützen bestehen aus Vollstahlrohren, die mit einer gegen den Brandfall schützenden Betonhülle ummantelt sind. Die Stützenquerschnitte sind entsprechend der Belastung im Untergeschoss am grössten und verkleinern sich bis ins 29. Obergeschoss.
Die Betondecken, die gleichzeitig als Kühldecken ausgebildet sind, verteilen die Lasten auf den Kern und die Stützen. Ihre Deckenränder sind mit einem Stahlprofil im Verbund ausgesteift. Diese durchlaufenden Überzüge reduzieren die Deckendeformationen und lassen die Tragkonstruktion in der Fassade filigran erscheinen. Das Intervall für das Erstellen eines Regelgeschosses (Kern, Decken, Montage der Stahlstützen und Stahlträger) betrug eine Woche. Erstmals in der Schweiz wurden dabei Decken und Wände des Hochbaus gleichzeitig geschalt, mit Haustechnikeinlagen versehen, bewehrt und betoniert.
Das angefügte Bauvolumen in den unteren Geschossen besteht aus einem 10 Meter hohen Raumfachwerk. Dieses kragt exzentrisch aus dem Turmgrundriss aus: 20 Meter auf der Querseite zum Platz hin und 10 Meter auf der Längsseite. Das Stützenraster ist das gleiche wie im Turm und zeichnet sich so über das ganze Gebäude einheitlich in der Fassade ab. Die beiden Volumen verzahnen sich gleichsam elegant als auch effizient ineinander. Die Lasten aus dem Turm besorgen die Einspannung – nachdem der Rohbau das 21. Geschoss erreicht hatte, konnte das Hilfsgerüst unter dem Fachwerk mittels Pressen entfernt werden. Windkräfte und Erdbebeneinwirkungen sind die massgebenden, wenn auch schwierig abschätzbaren Horizontaleinwirkungen auf das Gebäude. Windkanalversuche am Modell im Massstab 1 zu 400 zu Beginn der Planung halfen, das komplexe Verhalten bei Windeinwirkung zu eruieren. Durch die Verbindung des Kerns mit den Fassadenstützen im obersten Geschoss (Outrigger-System) konnten die Verformungen und Beschleunigungen um etwa 20 Prozent reduziert werden, was einen wesentlichen Komfortgewinn für das Bauwerk bedeutet.
Alle Lasten aus der Tragkonstruktion des Messeturms fliessen in den im Baugrund versenkten Untergeschosskasten. Er ist 10 Meter hoch und hat eine 2 Meter starke Bodenplatte, die auf 102 Bohrpfählen steht. Die Bodenplatte und die Tiefenfundation bilden zusammen die Einspannung des Turms, denn statisch gesehen ist ein Hochhaus ein vertikal mehr oder minder stark eingespannter Kragarm.
Outriggersystem im obersten Geschoss
Schnetzer Puskas Ingenieure
Räumliches Knotenelement in der Auskragung: Ansicht (oben) und Grundriss (unten)
Schnetzer Puskas Ingenieure
Oben: Längsschnitt; unten: Grundriss eines Regelgeschosses
Schnetzer Puskas Ingenieure
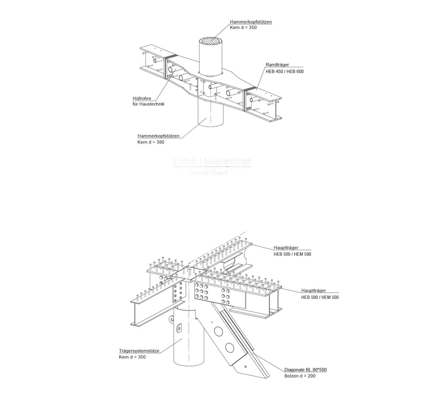
Oben: konstruktive Ausbildung der Hammerkopfstütze mit Trägerstoss des durchlaufend ausgebildeten Deckenrandes; Unten: Detailplan räumliches Fachwerkknotenelement in der Auskragung
Schnetzer Puskas Ingenieure
Stahlskelett des Messeturms
Josef Meyer Stah und Metall AG, Emmen
| Bauherrschaft | Swiss Prime Site |
| Totalunternehmung | Batigroup |
| Architektur | Morger Degelo Marques |
| Tragwerksplanung | WGG Schnetzer Puskas Ingenieure |
| Planungszeit | 2000 - 2001 |
| Realisierungszeit | 2001 - 2003 |
| Status | Gebaut |